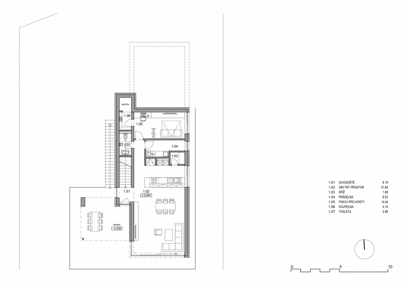
Svažitý terén předurčil tvar domu i dispoziční řešení
Na výsledný tvar domu měly zásadní vliv omezení daná místními podmínkami i požadavky klienta. Úkolem architektonického návrhu bylo vyřešit osazení domu na poměrně úzký pozemek, který se výrazně svažuje směrem k jihu. Přáním mladého páru rovněž bylo zachovat volnou západní část pozemku pro případnou dostavbu bazénu. Vznikl tak podlouhlý dům zasazený částečně do svahu, jehož základní kvádrovou hmotu doplňuje v příčném směru pouze výrazná terasa.

