(Komerční prezentace)
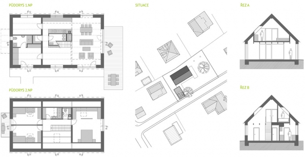
Rodinný dům je navržen jako průnik tradiční architektury lidového stavění na venkově a současných potřeb moderního bydlení. Ukázalo se, že převzaté principy chalup stavěné do konce 19. století jsou použitelné i dnes.

Jednoduchá figura domu je čitelná nejen zvenčí, ale i zevnitř. A to především díky otevřenému stropu ve střední části a vynecháním krajních polí stropní konstrukce obytného prostoru v přízemí. Vznikl tak velkorysý prostor, v jehož středu je “pec” soustřeďující zdroje veškerého tepla v domě.

A tak jako se chodívalo na pec spát, tak i zde se stoupá po tělese pece do ložnic. Vizuální sjednocení povrchů exteriéru a interiéru posiluje celkový výraz domu.

Více informací o společnosti a jejích produktech na Heluz.cz
Zdroj: Marketingové sdělení
