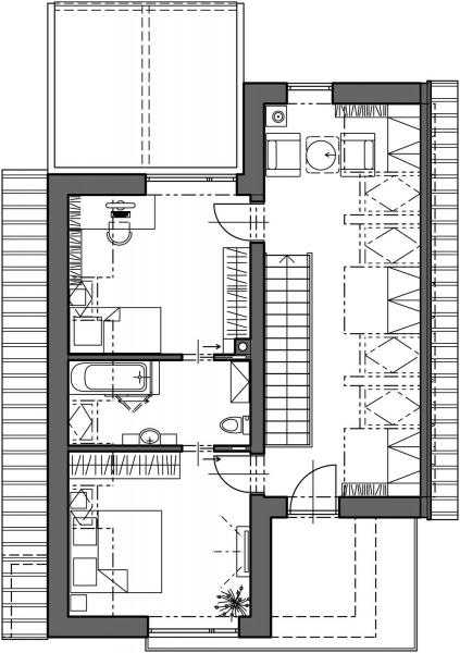
ADRIANA 2.02
Moderní dvoupodlažní rodinný dům se dvěma sesazenými pultovými střechami s kompaktní dispozicí 4 + 1, s obytnou částí v přízemí a se dvěma pokoji se společnou koupelnou v podkroví.
Zastavěná plocha: 97,35 m2
Užitná plocha: 148,33 m2
Výška hřebene: 8,60 m
Sklon střechy: 40°
Dispozice: 4+1
Typový projekt: 28 435 Kč
Zděný dům: 4 390 000 Kč (orientační ceny výstavby bez DPH)
