ozemek se starým stromem a málo sousedy nabízel dost místa pro dům a samostatnou garáž. Zahrada je slunná a poměrně velká, proto se manželé rozhodli připojit k domu také rohovou terasu, kde mohou sedět buď ve stínu, nebo na sluníčku, a na zahradě vybudovali bazén a jezírko pro okrasu. Vše elegantně sladili v moderním přírodním stylu.

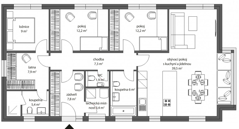
Požadavky na moderní bydlení čtyřčlenné rodiny dokonale splnila katalogová jednopodlažní dřevostavba Lucern 127 s dispozicí 4 + kk. Obdélníkový bezbariérový dům se sedlovou střechou krásně zapadne do venkovského prostředí a dřevěnou fasádu nechají majitelé postupně stárnout, aby tu působila ještě přirozeněji. Hlavní částí domu je krásně prosvětlený obývací pokoj spojený s kuchyní a jídelnou, který disponuje přímým vstupem do zahrady. Má oblíbenou dispozici ve tvaru písmene L, komfortní kuchyň je od jídelny oddělena velkým varným ostrůvkem. Součástí obývacího pokoje je tzv. čtecí okno – výklenek ve štítové části domu, který slouží rodině k odpočinku například u knihy.
