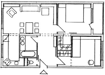
Řešené dispozice jsou variantami pro odlišné složení členů rodiny, pro rozdílné sociální skupiny. Základní dispozicí je třípokojový byt s lodžií a vestavěným bytovým jádrem klasických rozměrů (koupelna 160 x 160 cm, WC 80 x 160 cm s instalační šachtou).
Dvě sestry
První varianta záměrně zachovává strukturu příček, aby poukázala na chyby původní dispozice. V bytě v této podobě bydlí dvě starší osoby – sestry, z nichž každá má svůj vlastní obytný prostor, třetí pokoj má sloužit oběma ženám ke společnému pobytu nebo přijímání návštěv. Tento pokoj je největší, navazuje na lodžii a počítá se v něm také s velkým jídelním stolem pro slavnostní obědy či večeře.
Umakartové bytové jádro bylo nahrazeno lehkými sádrokartonovými příčkami, ale velikost koupelny a WC se nezměnila. Byla vypuštěna příčka mezi chodbou a kuchyní, která lícovala s příčkou WC a koupelny a bránila samostatnému vstupu do nejmenšího z pokojů (byl dříve přístupný pouze ze společného obytného prostoru). Případné uzavření kuchyně by mohlo nastat až v rovině kuchyňské sestavy.
Nevýhodou tohoto dispozičního řešení jsou špatné provozní vztahy mezi kuchyní a hlavním obytným prostorem, v klasické rodině s dětmi by byly ještě komplikovanější než v případě soužití dvou samostatných dospělých osob.
| Více článků z rubriky STAVBA na www.dumabyt.cz. |
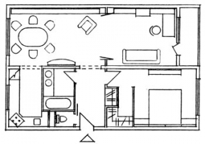
Klasická trojice
Úprava pro tři osoby (rodiče a dítě bez ohledu na jeho věk) především ruší přímý vstup z chodby do kuchyně, do které se bude vcházet pouze z obytného prostoru. Náhradou za kratší spojení od vstupu ke kuchyni je však podstatnější výhoda – větší koupelna, do které lze umístit pohodlnou vanu délky 180 cm a dvě umyvadla. Původní „krček“ byl totiž pouhou komunikační, jinak nevyužitou plochou kuchyně. Pracovní plocha kuchyně se umístila pod okno, což uvítá téměř každá hospodyně, mezi varnou desku a dřez se může instalovat užší myčka, do rohu se vejde velká chladnička s mrazákem.
Obytný prostor, kde se rodina shromažďuje, je zároveň i jídelnou a je přímo propojen s kuchyní (oddělit se může posuvnými dveřmi od kuchyně i chodby). Ložnice rodičů je přístupná z obývacího pokoje a navazuje na šatnu, pokoj dítěte je zcela samostatným prostorem, také on má k dispozici malou šatnu ve vstupní části.
Otevíravé dveře na WC byly nahrazeny posuvnými, aby nedocházelo ke kumulaci se vstupními dveřmi do bytu.
| ! Prohlédněte si on-line NEJVĚTŠÍ KATALOG RODINNÝCH DOMŮ ! |
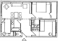
Náročná dvojka
Pro mladou bezdětnou dvojici s rušným společenským životem je navržena třetí, velkorysejší varianta. Nově navržená kuchyně a koupelna jsou řešeny stejně jako v předchozí variantě, návrh však počítá s využitím celého jednoho traktu jako volného obytného prostoru, od kterého se podle potřeby může oddělit (skládací skleněnou stěnou) intimnější kout k poslechu hudby, sledování televize nebo k pracovním účelům. Ke společenským účelům se využívá především velký jídelní stůl s pohodlnými polokřesly.
V chodbě je navržena nika pro uložení kabátů, na kterou z druhé strany navazuje šatna, umístěná před vstupem do ložnice. Stejně jako v předchozím řešení, i tady se počítá s výměnou dveří na WC za posuvné.
text: Zora Martinová, foto: Iveta Kopicová
