K domu je připojeno jedno kryté stání pro parkování automobilu. Obývací část tvořená spojeným obývacím pokojem, jídelnou a kuchyní je plně propojena se zahradou nejen okny, ale i možností průchodu na krytou terasu.
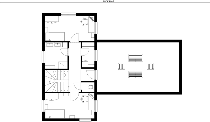
Ačkoliv dům není koncipovaný jako dvougenerační, splňuje však požadavek na bydlení například rodičů v přízemní části s veškerým zázemím koupelnou a WC. Druhé patro pak může sloužit pro bydlení dětí, kterým vznikne samostatný prostor se dvěma pokoji s vlastní komorou, koupelnou a WC.
