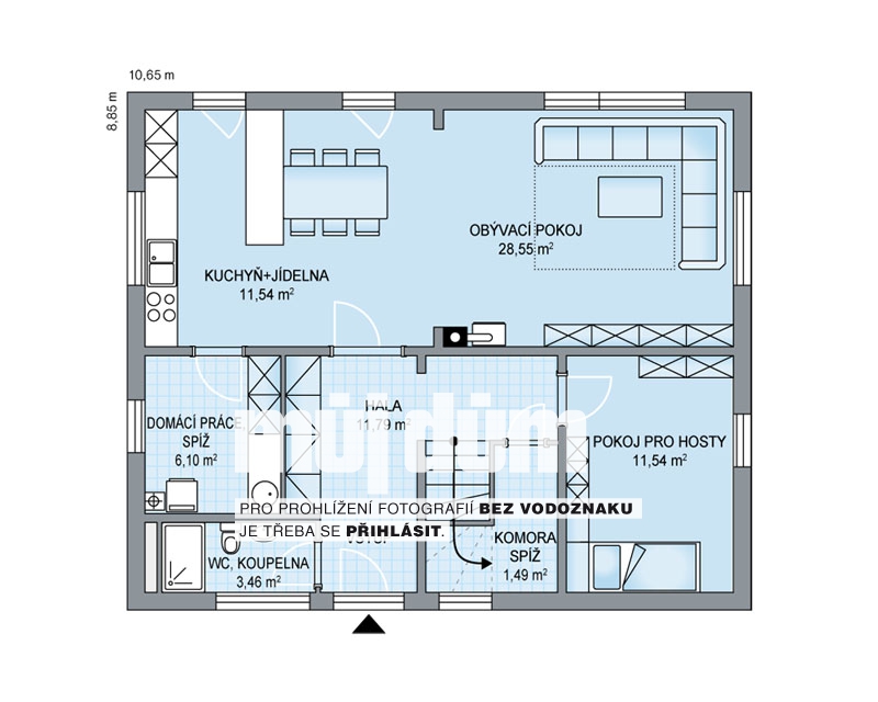
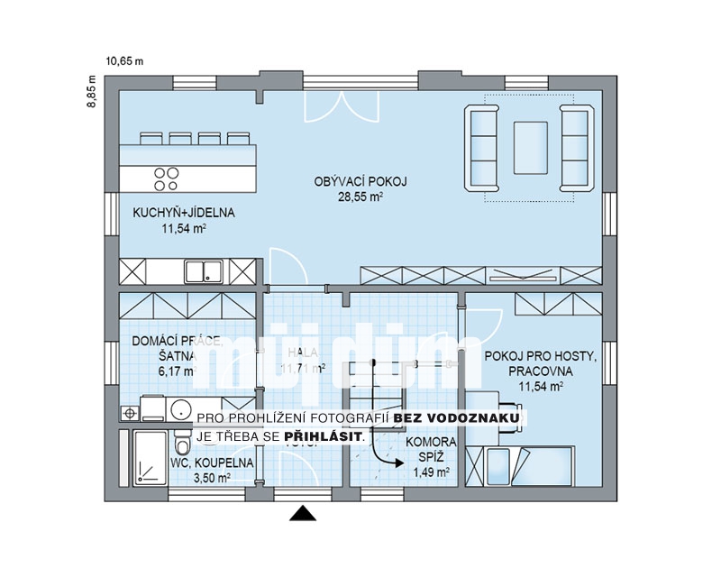
Od roku 1994, kdy byla představena jejich první generace, si rodinné domy CANABA CLASSIC oblíbilo bezpočet klientů jak v Německu, tak v Čechách i na Slovensku.
O oblíbenosti svědčí i to, že všechny jeho předešlé generace získaly hned po svém uvedení na trh titul Dům roku. Nyní přichází CANABA s revoluční inovací a představuje již pátou generaci – projekt CLASSIC CITY, který získal ocenění Dům roku 2015. Tento dům zkrátka nebude nikdy „out“.
